海关AEO认证全流程服务,100%通过

 找回密码
 注册

QQ登录

只需一步,快速开始

手机号码,快捷登录

手机号码,快捷登录

在线
客服

在线客服服务时间: 9:00-24:00

选择下列客服马上在线沟通:

快速
发帖

客服
热线

010-62010715
7*24小时客服服务热线

关注
微信

关务资讯公众号
顶部
海关AEO认证申请全攻略2022年预归类师考试秘籍中国船务课程视频2020年关务水平测试培训
申请进出口商品预归类视频!AEO认证政策解读商品归类在线解答海关AEO认证,100%通过
AEO认证服务网北京岸谷关务官网预归类服务-归类师权威操作预归类考试网
查看: 3678|回复: 2

关于空气处理机组的归类

[复制链接]
发表于 2015-9-6 17:07:32 | 显示全部楼层 |阅读模式
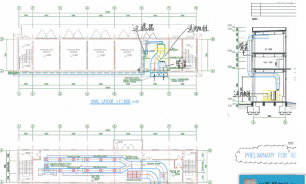
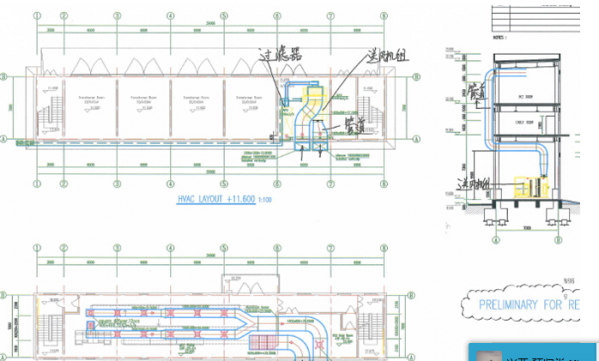
空气处理机组
该商品结构组成:完整的一套空气处理机组由四个部分组成,即送风机组(内含风机、冷却盘管等)、过滤器、送风管道(装有风口、风阀、温湿度感应器)和水流管路(温度感应器和阀门)组装成一体(?)。用途:调节室内温度和湿度。原理:室外的自然空气经过过滤器后,汇合房间的回风经风机送到冷却盘管(此处冷却为物理冷却, 即通过工厂现场流入盘管的冷却水来进行冷却;安装于风管上的风阀、温湿度感应器等元器件分别用于感应和控制温度和湿度,安装于水流管路的温度感应器和阀门等用于控制水流温度和流量等, 水流管路给冷却盘管提供冷却水。不含压缩机和氟利昂等制冷设备)或加热器(有加热装置, 电加热)进行冷却或加热,经冷热交换达到设计温度后经由送风管道送入指定房间,使室内的温度保持在23±2℃,湿度保持在50±5%,同时保持房间的正压,房间空气质量等级达到G1等级,以达到机器设备适宜的运行工况。
材质:送风机组: 铝合金框架结构, 喷涂双层面板过滤器: 铝外框,过滤网,风管: 铝板(?),保温橡塑海棉,不锈钢支吊架,不锈钢安装螺栓等附件。品牌:思科国祥;型号:SKZW4423DW
注:制冷机未一同报验。加热器装在出风口上对冷风进行加热,调整到相对合适的温度。

图一

图一

图二

图二
发表于 2015-12-21 09:09:47 来自手机 | 显示全部楼层
根据其工作原理,符合税则税目8415的描述。
*滑块验证:
您需要登录后才可以回帖 登录 | 注册

本版积分规则

关闭

站长推荐上一条 /2 下一条

QQ|Archiver|手机版|小黑屋|外贸精英网 ( 京ICP备19046145号 )

GMT+8, 2026-2-3 23:00

Powered by Discuz! X3.5 Licensed

Copyright © 2001-2026 Tencent Cloud.

快速回复 返回顶部 返回列表