2020年预归类考试实战课程

 找回密码
 注册

QQ登录

只需一步,快速开始

手机号码,快捷登录

手机号码,快捷登录

在线
客服

在线客服服务时间: 9:00-24:00

选择下列客服马上在线沟通:

快速
发帖

客服
热线

010-62010715
7*24小时客服服务热线

关注
微信

关务资讯公众号
顶部
海关AEO认证申请全攻略2022年预归类师考试秘籍中国船务课程视频2020年关务水平测试培训
申请进出口商品预归类视频!AEO认证政策解读商品归类在线解答海关AEO认证,100%通过
AEO认证服务网北京岸谷关务官网预归类服务-归类师权威操作预归类考试网
查看: 731|回复: 0

总建筑规模逾11万㎡!保税区又一商办项目即将面世

[复制链接]
发表于 2020-11-17 15:58:23 | 显示全部楼层 |阅读模式
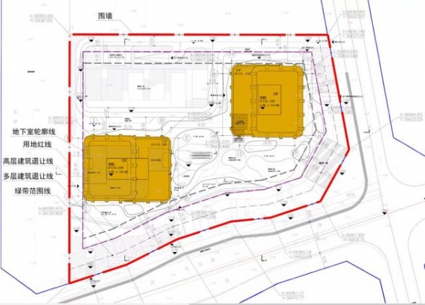
2020年11月16日,珠海市自然资源局公布了关于珠海浩发物业发展有限公司项目规划批后公示。


总建筑规模逾11万㎡!保税区又一商办项目即将面世-1.jpg

该项目建设名称为临江尚品,建设用地性质为商务、商业用地,项目位置位于珠海保税区宝怡路北侧、宝琴路东侧。


总建筑规模逾11万㎡!保税区又一商办项目即将面世-2.jpg

据公告所示,项目总建设用地面积14758.91平方米;总建筑规模113415.29平方米,其中地上建筑面积93617.29㎡,地下建筑面积19798.00㎡。


总建筑规模逾11万㎡!保税区又一商办项目即将面世-3.jpg

计容建筑面积87000㎡(包含商业建筑面积5714.55㎡,办公建筑面积:80179.62㎡,公共配套建筑面积:1105.83㎡);容积率:5.89,一级建筑覆盖率:19.81%,二级建筑覆盖率:38.34%,绿化率:20.20%。


总建筑规模逾11万㎡!保税区又一商办项目即将面世-4.jpg

临江尚品由两栋32层塔楼及其附属配套建筑组成,计划建成集产业、酒店、办公、商业、娱乐、休闲为一体的综合体项目,项目总高度约140米。


项目所在位置靠近马骝洲河道,该区域是保税区一类景观风景区,是珠海未来规划的高端、优质建筑密集区域。周边项目有中海南航·湾区国际、碧桂园·臻湾国际、海琴湾广场以及保利中油时代广场等,区域均价约23000-28000元/㎡不等。


总建筑规模逾11万㎡!保税区又一商办项目即将面世-5.jpg

(图源:中庸集团)


值得一提的是,珠海市公共资源交易中心在11月5日推出一宗保税区商住用地,位于保税区保西路东侧、宝和路南侧,地块E、F部分设计意向为步行水街,进一步完善保税区临河道景观风景。


总建筑规模逾11万㎡!保税区又一商办项目即将面世-6.jpg

据了解,2019年9月,临江尚品项目开工仪式在在珠海保税区举行,此后,珠海市自然资源局在今年10月发布该项目批前公示,进一步推进该项目建设工作,未来或将对保税区对外商业、商务交流起到一定的推动作用。


总建筑规模逾11万㎡!保税区又一商办项目即将面世-7.jpg
*滑块验证:
您需要登录后才可以回帖 登录 | 注册

本版积分规则

关闭

站长推荐上一条 /2 下一条

QQ|Archiver|手机版|小黑屋|外贸精英网 ( 京ICP备19046145号 )

GMT+8, 2025-11-8 16:19

Powered by Discuz! X3.5 Licensed

Copyright © 2001-2025 Tencent Cloud.

快速回复 返回顶部 返回列表